Departamento

de Arquitectura

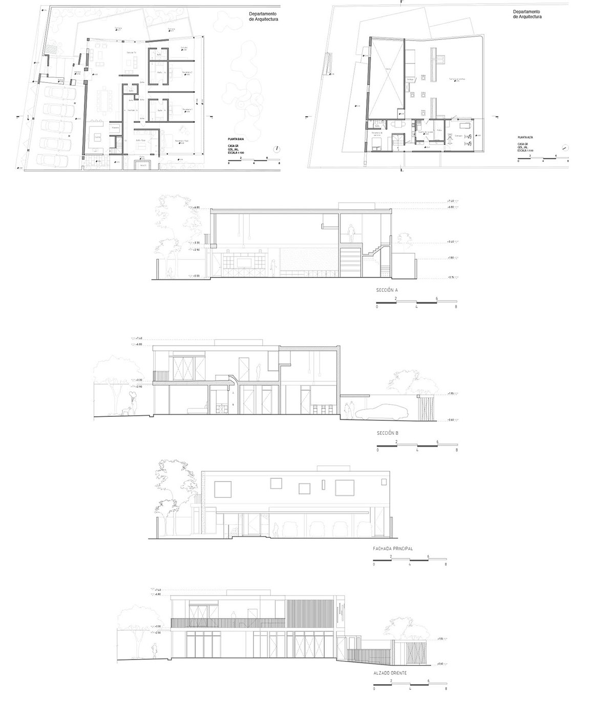
departamento de arquitectura
Proyecto. Jorge Rivera (Departamento de Arquitectura) Construcción CoA / Alberto Avilés Maestros de Obra. Román Valencia Mendoza Colaboradores Andrea Romero, Mariana Murguía, Ekaterina Vázquez, Maria Jose Melo. Diseño Estructural. Ulises Vázquez (CIEgdl) Ubicación. México.
 Casa de descanso, inmersa en un huerto de árboles frutales, cafetales y otras especies endémicas. La vegetación es densa, la noción de paisaje y vista distantes, imposibles. El paisaje es próximo, inmediato. La casa busca lo mismo, proximidad al cuerpo y al paisaje. Diseñada para ser vivida hacia el interior, busca crear espacios reflexivos y relajantes por medio de la penumbra. De planta elíptica para evitar dañar los árboles del sitio, la casa se perfora, expande, contrae sobre la elipse para dar cabida a los árboles y permitir la entrada de luz. La casa deja entrar éste paisaje a la vida privada por medio de perforaciones y ventanas cuidadosamente ubicadas para enmarcar el entorno, pero es hacia un patio interior que se vuelca el espacio habitable. El patio articula, junto con un andador al aire libre, el programa de la casa: tres habitaciones y un área social. Materialmente, la casa se construye con muros de piedra, que hace eco del paisaje construido de Amacueca. Al interior, la estrictura de la cubierta se compone por armaduras y columnas de madera con cubierta de concreto. La misma estructura permanece aparente, convirtiendo la estructura en el acabado predominante en el espacio interior.
Año. 2013 - 2015